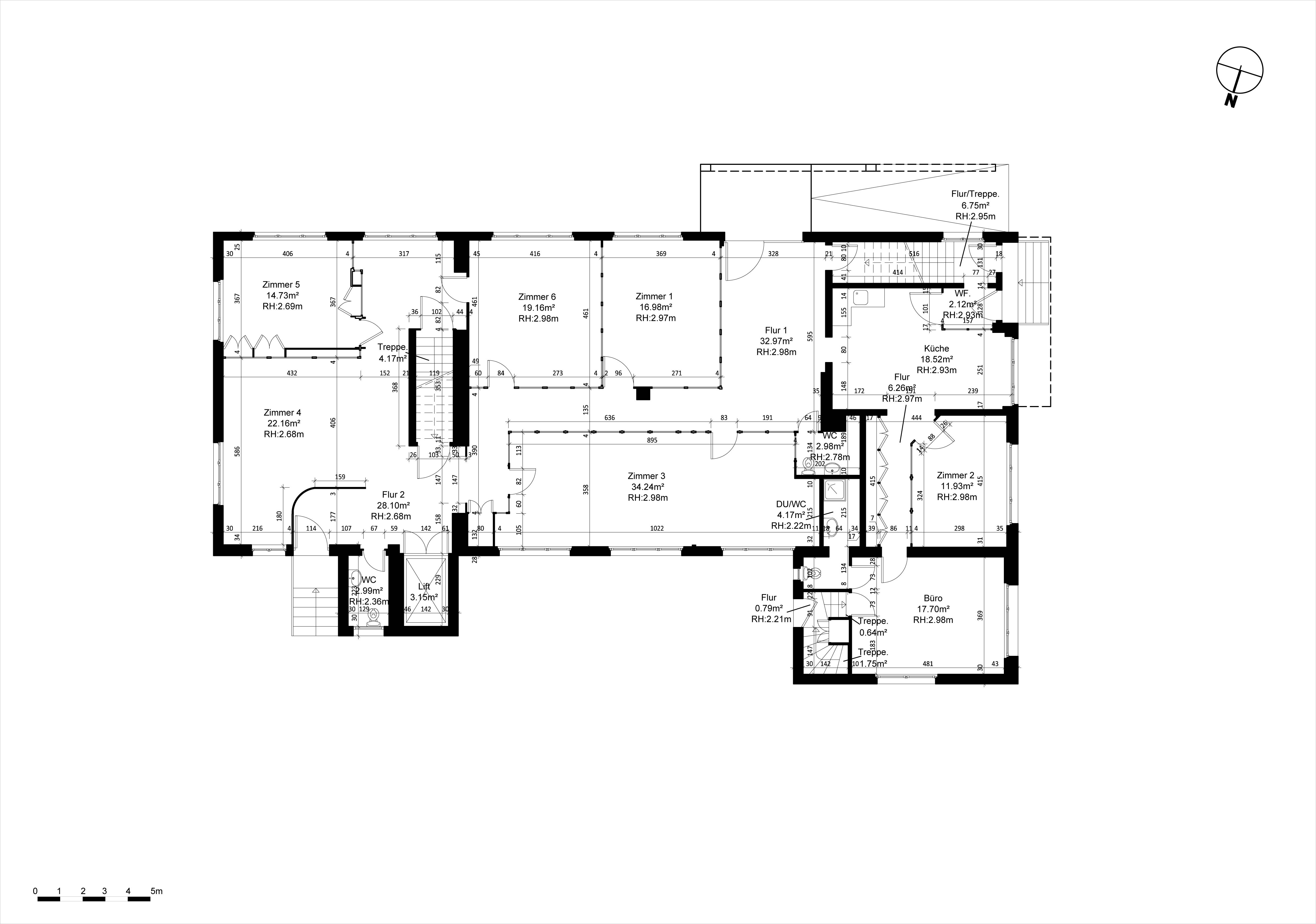
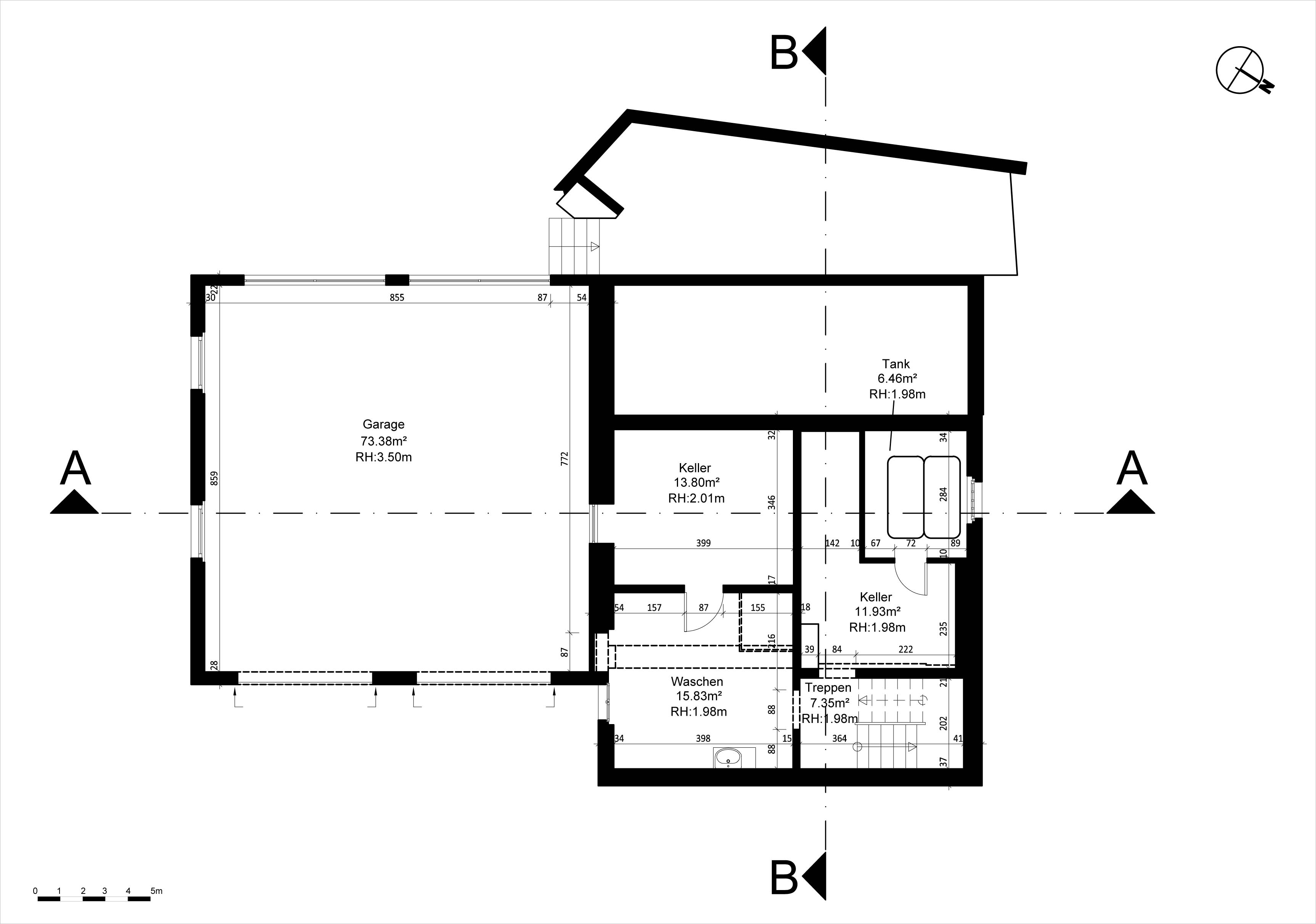
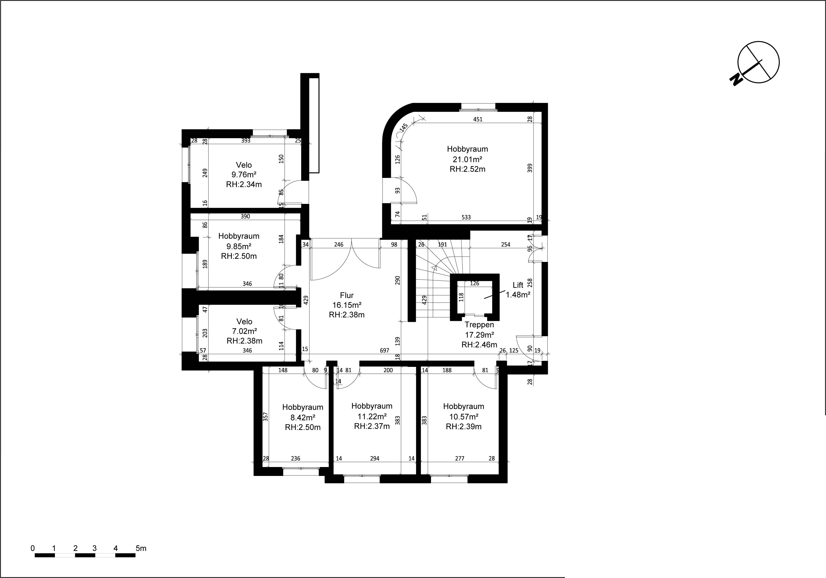
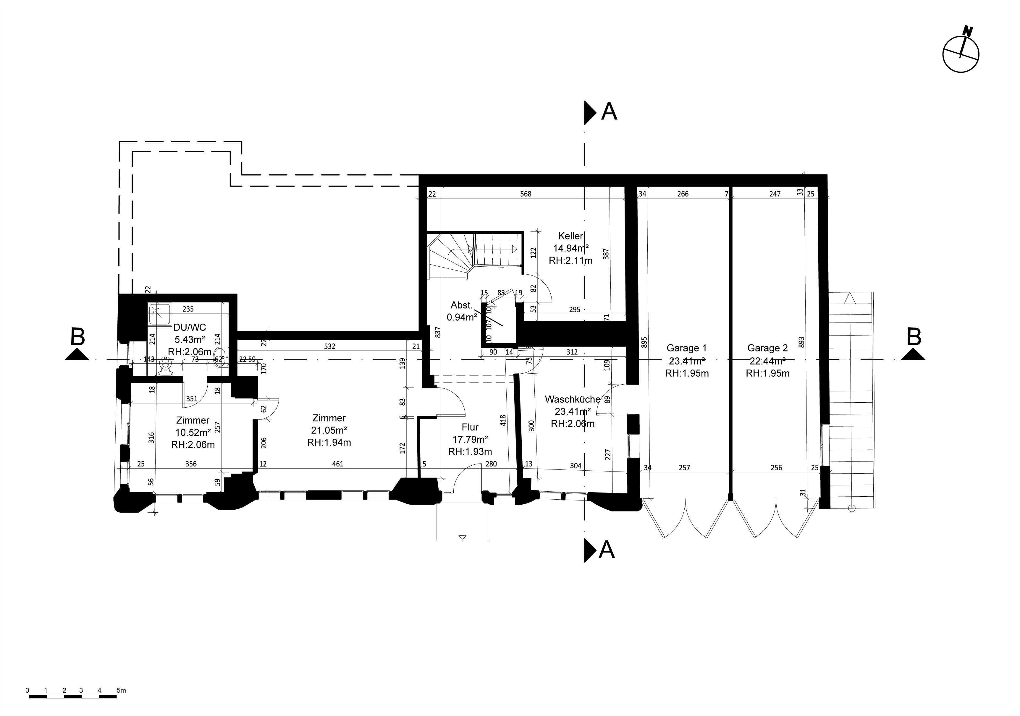
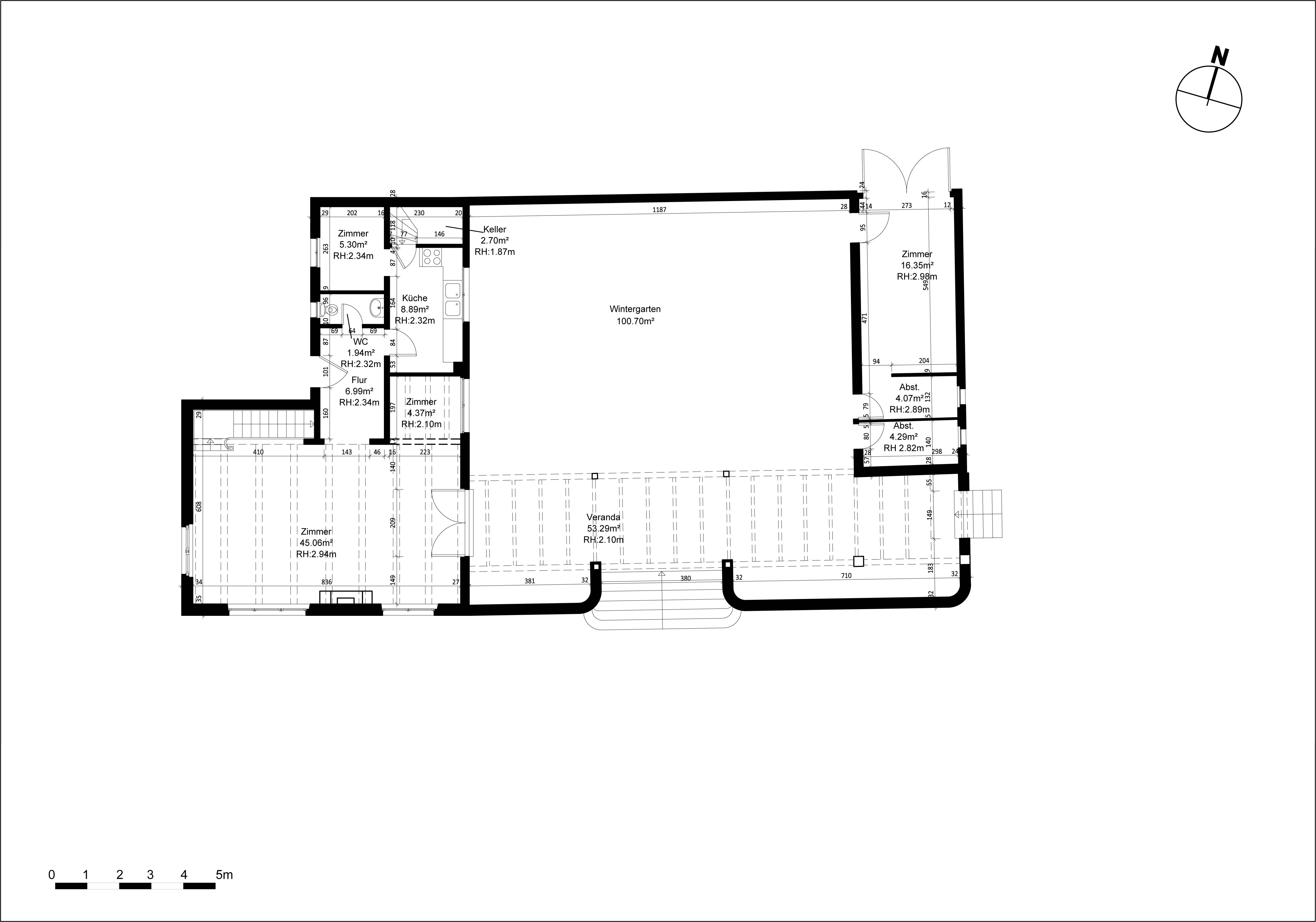
As a professional Point Cloud to CAD service provider, iTechLance IT converts raw 3D scan data into precise, scalable CAD drawings. Our expertise ensures accuracy, efficiency, and compliance with industry standards for engineering, architectural, and construction projects.

We specialize in converting 3D point cloud data from laser scans into accurate and fully editable CAD drawings. This service enables efficient design, detailed documentation, and in-depth project analysis across engineering, architectural, and construction projects.

Our Point Cloud to CAD Services Include:

  • 3D Scan Data Processing – Clean and organize raw point cloud data for accurate conversion.
  • 2D CAD Conversion – Transform point cloud data into precise 2D CAD drawings.
  • 3D Revit Modeling – Generate editable 3D CAD models for design and analysis.
  • As-Built Drawings – Create accurate representations of existing structures from point cloud scans.
  • Structural & Architectural Drafting – Convert scanned data into detailed building and structural plans.
  • MEP Drafting – Produce mechanical, electrical, and plumbing drawings from 3D scans.
  • Fabrication & Shop Drawings – Develop manufacturing-ready drawings from point cloud data.
  • BIM Integration – Convert point clouds into intelligent 3D BIM models for project coordination.
  • Survey Data Conversion – Turn survey scans into accurate CAD documentation for planning and design.
cad-service-img1

CONTACT US

Maximum size limit 25MB. If more, kindly send via email or email us at info@itechlance.com for FTP space.