Categorie
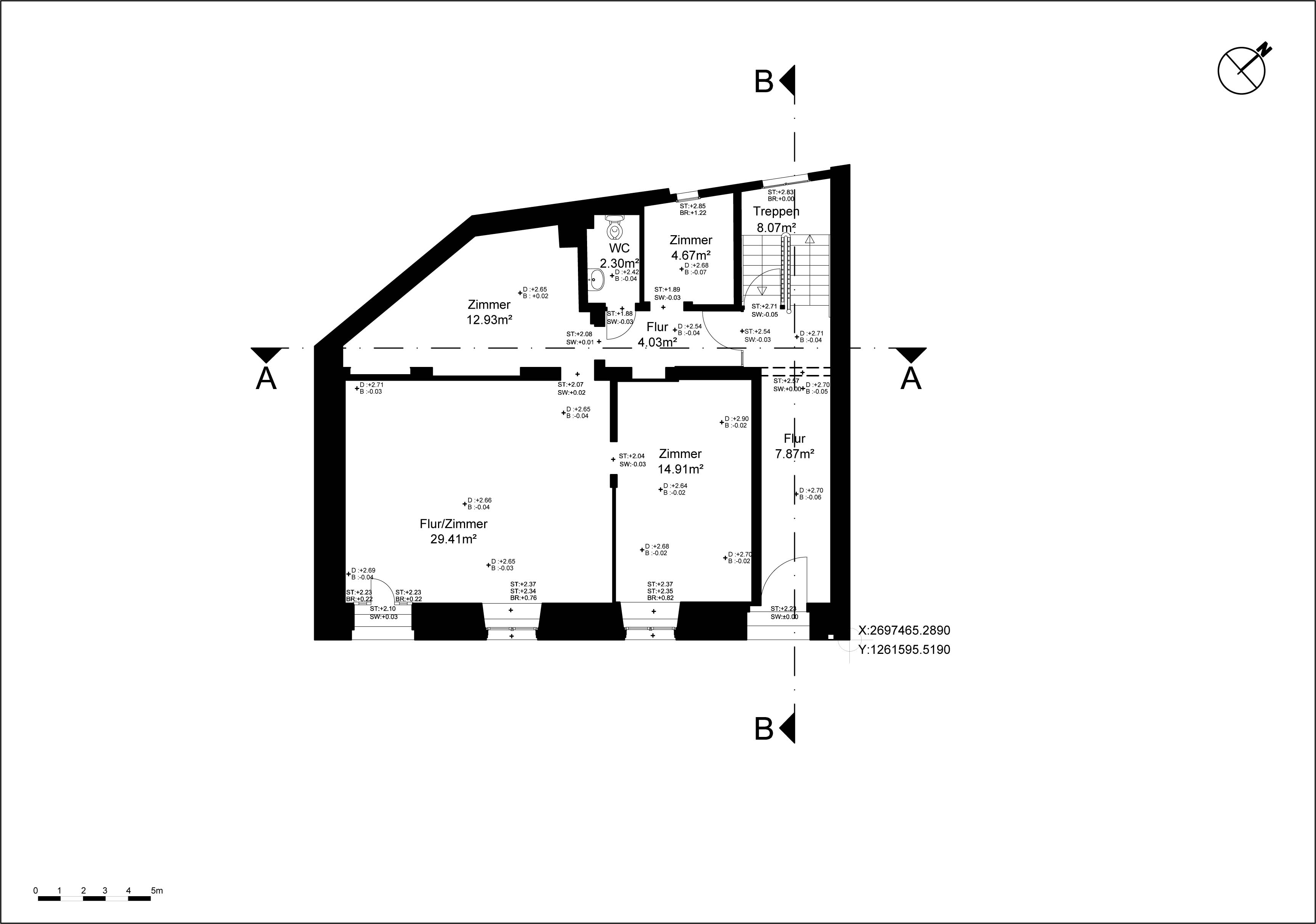
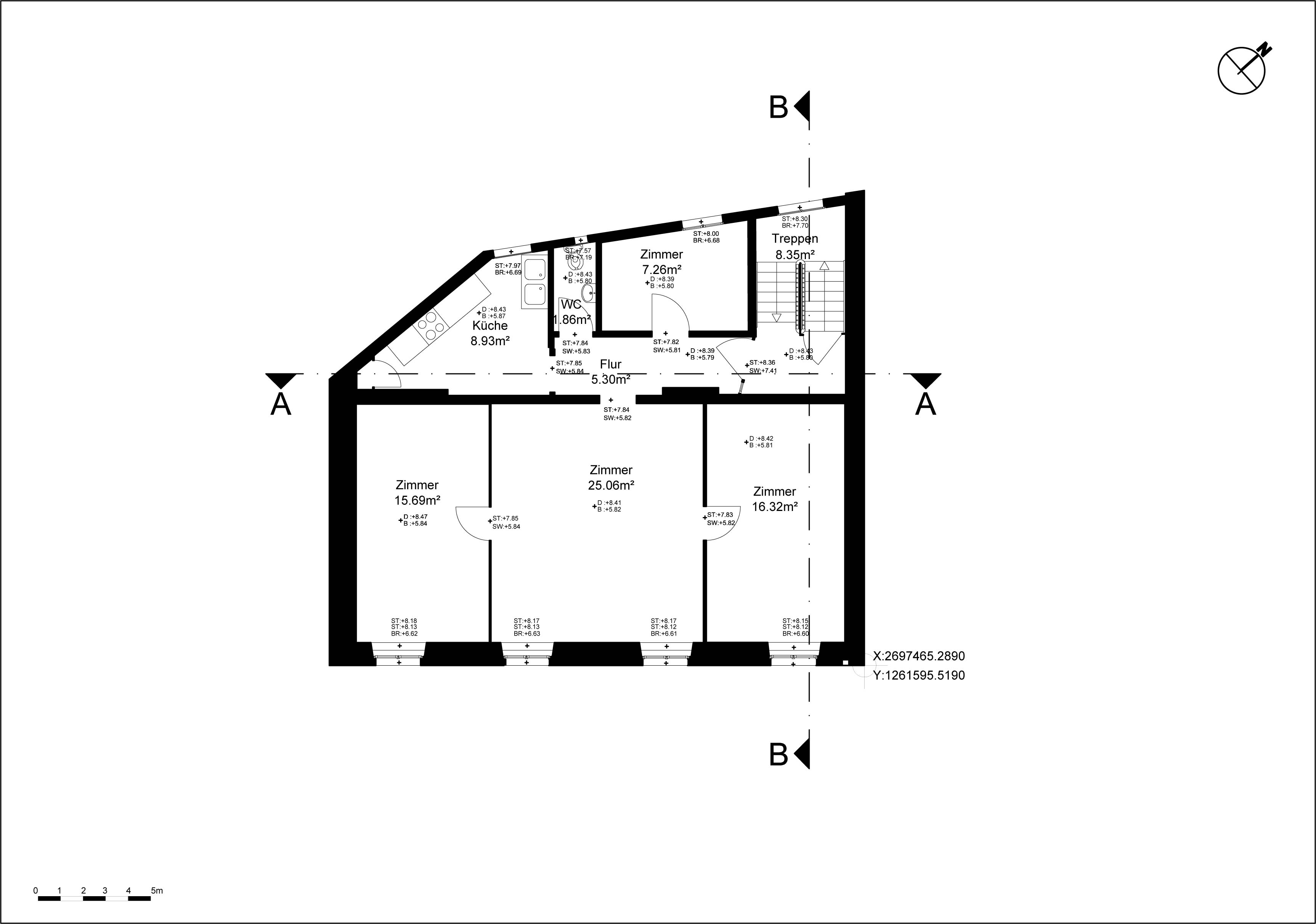
Point Cloud To CAD
About this project

Client : Switzerland
Project : Technikumstr_4
Input : We have received the 3D scan data in .e57 format. Google location map and specication. 
Output : .dwg and .pdf